- Living area
- About 88 m²
- Plot area
- About 320 m²
- Construction year
- Built in 1975
- Number of rooms
- 5 rooms (3 bedrooms)
In a quiet street, in the forest-rich village of Vledder, stands this 2-in-1 detached house with an energy label A. In 2022, significant investments were made in sustainability: ten solar panels were installed, the boiler was replaced, and a heat pump with a buffer tank was added. Additionally, in 2021, the bathroom and toilet were completely renovated. The property sits on a plot of 320 m².
Classification
Ground floor:
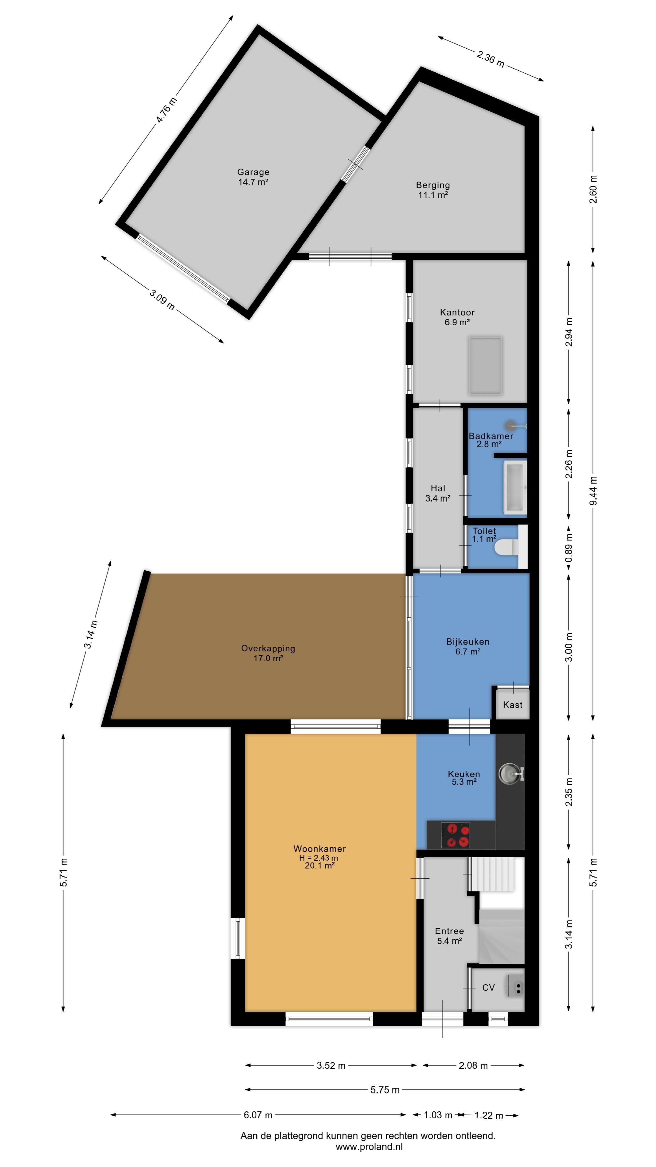
Entrance with hall, staircase to the upper floor, access to the basement and former toilet area. This space is now set up as a technical room, including among other things the inverter for the solar panels, the central heating boiler, and the heat pump with hot water tank.
From the hallway you enter the living room, which receives a lot of natural light due to the large window panels. Adjacent is the semi-open corner kitchen, equipped with various built-in appliances, including a ceramic cooktop.
The pantry with back door and kitchen appliance connection is accessible via the kitchen. Here you will find the bathroom with walk-in shower and vanity cabinet, as well as a separate toilet, both renovated in 2021.
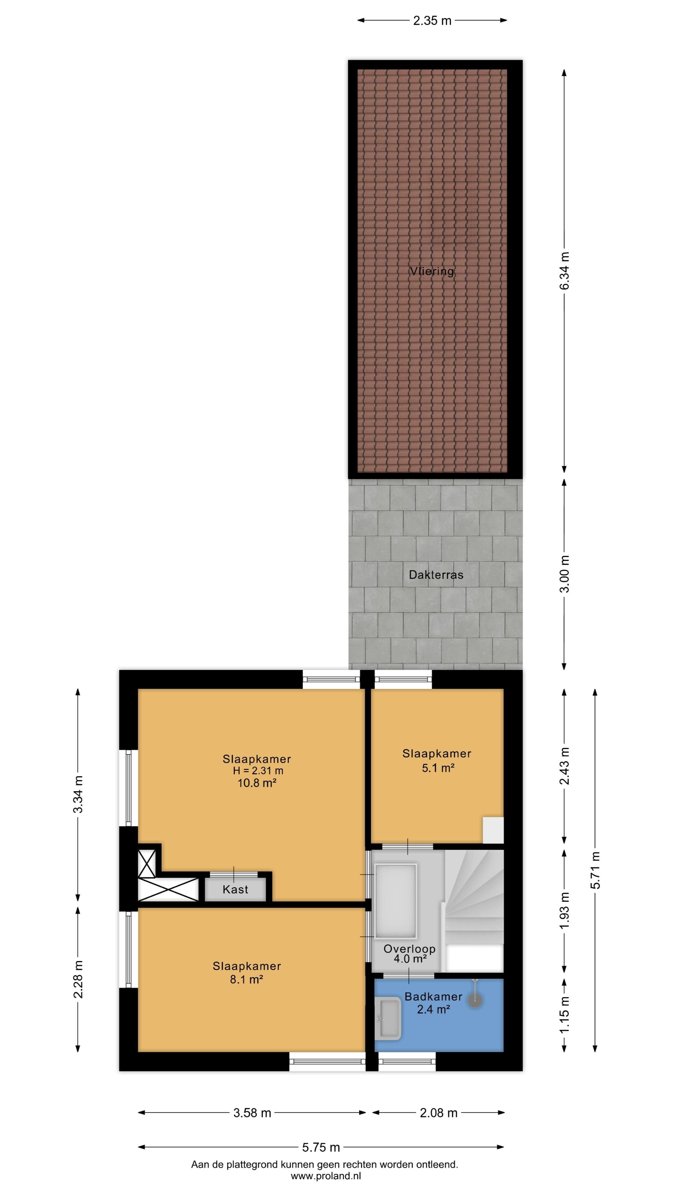
At the back of the house there is a work or hobby room with a ladder staircase to the attic.
1st floor:
From the hallway, three bedrooms are accessible. There is also a former bathroom that can be used as it is or easily renovated into a second toilet. In the ceiling of the hallway, there is a hatch to the attic.
Garden:
De onderhoudsvriendelijke achtertuin is volledig bestraat en ligt pal op het zuiden. Achter aan de woning is een overkapping, ideaal voor gezellige zomeravonden. Verder beschikt de tuin over een berging en een garage. Op het eigen erf is ruime parkeergelegenheid aanwezig, zodat meerdere auto’s gemakkelijk kunnen staan.
Vledder is a forest-rich pine village in the municipality of Westerveld and a typical Drentse meadow village. The village offers various facilities such as supermarket, bakery, butcher, other small businesses, and hospitality services, and has a rich social life. The surroundings are known for their many monumental buildings, including the historical colony Frederiksoord, where the 'Society for Welfare' is located.
Vledder is conveniently located near the A32 (Meppel/Zwolle – Heerenveen/Leeuwarden) and close to Steenwijk (NS intercity station) and Noordwolde for an extensive shopping and hospitality area. Read the full description
Transfer
- Asking price
- € 305,000 netto
- Status
- Available
- Acceptance
- Available immediately
Construction
- Object type
- Single-family home, 2-bedroom apartment under one roof
- Type of construction
- Existing construction
- Construction year
- 1975
- Type roof
- Rooftop covered with tiles
Area and content
- Living area
- 88 m²
- Plot area
- 320 m²
- Contents
- 354 m³
- External storage space
- 15 m²
- Building-related outdoor area
- 17 m²
Classification
- Number of rooms
- 5 rooms (3 bedrooms)
- Number of bathrooms
- 2 bathrooms and 1 separate toilet
- Bathroom facilities
- Inloopdouche, wastafelmeubel, douche, en wastafel
- Number of floors
- 2 woonlagen en een kelder
- Provisions
- TV kabel en zonnepanelen
Energy
- Energy label
- A
- Energy label registration
- 28-08-2025
- Isolation
- Roof insulation, double glazing and wall insulation
- Heating
- CV boiler
- Hot water
- CV boiler
- Boiler
- Gas gestookt combiketel uit 2022, eigendom
Outdoor space
- Garden
- Back garden, front garden and side garden
Mine space
- Shed / storage
- Attached wooden storage
Garage
- Type garage
- Attached stone garage
- Capacity
- 1 car
Parking facility
- Type of parking facility
- At home
Energy consumption in Vledder
Energy label this property
Energielabel A
Energy label publication: 28-08-2025
Annual electricity consumption
(Average under one roof in Vledder)
Annual gas consumption
(Average under one roof in Vledder)
* Figures are derived from CBS and are intended as an indication and may differ for this property
Mortgage costs indicator
Own contribution:
Savings / excess value
Interest:
Lowest 10-year interest rate
Lowest 10-year interest rate
2,73% - Centraal Beheer Groen... - NHG
3% - Centraal Beheer Groen Lee... - 80%
Lowest 20-year interest rate
3,18% - Argenta Groen Hypothee... - NHG
3,39% - Argenta Groen Hypothee... - 80%
Lowest 30-year interest rate
3,35% - Argenta Groen Hypothee... - NHG
3,56% - Argenta Groen Hypothee... - 80%
Mortgage:
Gross monthly expenses: € 0 p/m
Net monthly expenses: € 0 p/m
How do we calculate this?
The interest rate is based on the lowest 10-year fixed rate for a single mortgage part. The stated rate (2.73% met NHG) was verified on 15-11-2025. This calculation is based on an annuity mortgage that is fully repaid, with monthly payments remaining the same throughout the entire term. The actual interest rate and net monthly costs may vary depending on your personal situation and the mortgage provider. Consult a financial advisor for an accurate calculation and advice. No rights can be derived from this calculation; it is for indicative purposes only.
Documentation
Cadastral map
Living environment
Visit our website
Viewing
To make an offer
Valuation
Search query
Download everything
Viewing solar limits
Residents of Vledder
Statistics for postal code area 8381
- Total number of inhabitants
- 1940 residents
- Men
- 49%
- Women
- 51%
Residents of Vledder
Statistics for postal code area 8381
- until 15 years
- 11%
- 15 to 25 years
- 9%
- 25 to 35 years
- 15%
- 45 to 65 years
- 29%
- 65 and older
- 37%
Households in Vledder
Statistics for postal code area 8381
- Single without children
- 36%
- Multiple persons without children
- 41%
- Households without children
- 77%
Households in Vledder
Statistics for postal code area 8381
- Households with one child
- 3%
- Households with multiple children
- 20%
- Households with children
- 23%
Homes in Vledder
Statistics for postal code area 8381
- Housing for 1945
- 6%
- Houses between 1945 and 1965
- 10%
- Houses between 1965 and 1975
- 24%
- Houses between 1975 and 1985
- 16%
- Houses between 1985 and 1995
- 32%
Homes in Vledder
Statistics for postal code area 8381
- Homes between 1995 and 2005
- 11%
- Homes between 2005 and 2015
- 1%
- Homes after 2015
- 1%
- Rented apartments
- 20%
- Purchase properties
- 80%
Other income Vledder
Statistics for postal code area 8381
- Average WOZ value
- € 242.000,-
- People under 65 with disability benefits
- 7%
Other income Vledder
Statistics for postal code area 8381
- Addresses per square kilometer
- 273
- "Urbanity (scale 1 to 5)"
- 20%
Mijn Makelaar Steenwijk
If you have questions or would like to schedule a viewing, you can use the form on the right. You will then be contacted shortly thereafter.
Burg. Goeman Borgesiusstraat 11
8331 JZ, Steenwijk
0521 - 516 463 steenwijk@mijnmakelaar.nl www.mijnmakelaarsteenwijk.nlMake contact
A household name in Steenwijk and surroundings for 40 years!"
We are ready to help you achieve your housing ambitions. Whether it's a large or small project, buying or selling a home is a profound process. We value direct communication and dedication throughout this process so that you can be satisfied with selling your home or acquiring your ideal house. Our commitment to you is guaranteed. With our honest and transparent approach, you are always informed. Our unique brokerage system ensures that you pay the right price. Are we what you're looking for? We would love to schedule a meeting to explore your goals.
Latest reviews
-
Prins Bernhardstraat 32
Mieke is a nice real estate agent. She is knowledgeable, but also establishes contact in a very human and warm way. This made it a perfect m...
-
Gerardus Majellahof 2
Open and clear communication, thinks along with you, accessible and well reachable. Smooth follow-up of everything needed to sell your home...
-
Waardeel 71
Mieke is a very competent and friendly real estate agent. Highly reachable, open and honest in communication, definitely recommended! Our ho...